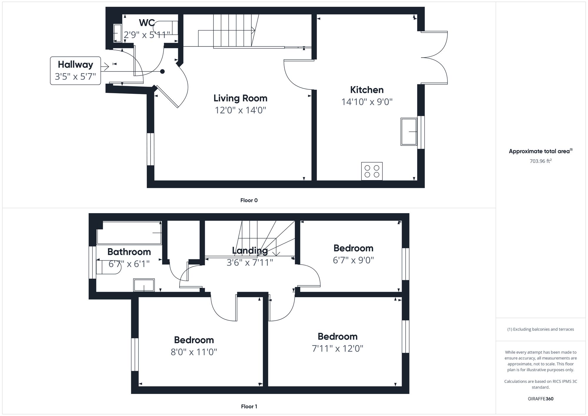
3 bedroom
1 bathroom
1 reception
3 bedroom
1 bathroom
1 reception
Entrance HallDimensions: 1.04m x 1.7m.
WCDimensions: 0.84m x 1.8m.
Living RoomDimensions: 3.66m x 4.27m.
KitchenDimensions: 4.52m x 2.74m.
BedroomDimensions: 2.44m x 3.35m.
BedroomDimensions: 2.41m x 3.66m.
BedroomDimensions: 2m x 2.74m.
BathroomDimensions: 2m x 1.85m.
Low Maintenance Rear Garden













