1 bedroom
1 bathroom
1 reception
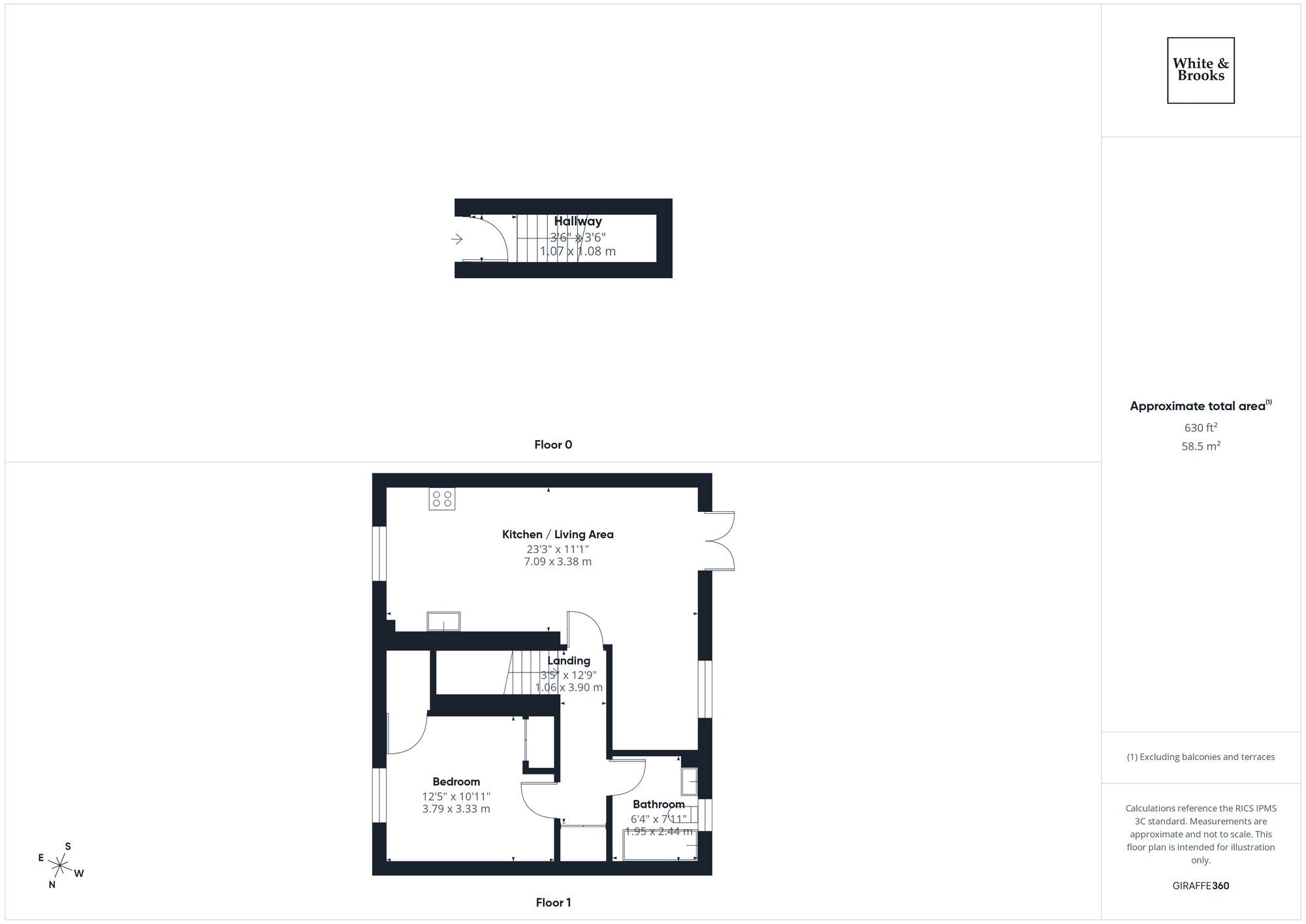
624.31 sq ft (58 sq m)
1 bedroom
1 bathroom
1 reception
624.31 sq ft (58 sq m)
This immaculately presented one-bedroom first-floor apartment is tucked away in a quiet cul-de-sac in the highly sought-after area of Summersdale, just one mile north of Chichester city centre. The property is also available on a 50% shared ownership basis.
Built just eight years ago, the heart of the home is a spacious open-plan kitchen, dining, and living area, enhanced by large windows that flood the space with natural light. The contemporary kitchen is fitted with sleek units and includes an integrated oven and gas hob.
The generously sized bedroom benefits from a double built-in wardrobe, while the modern, fully tiled bathroom is fitted with a bath and overhead shower.
Outside, the property offers an allocated parking space to the front. To the rear, there is a small private courtyard with a shed and bin store. Residents also have access to a well-maintained communal garden.
Summersdale is a leafy part of Chichester with walks directly into the surrounding countryside but also walkable into Chichester which provides a wide variety of cultural, leisure, and shopping facilities, including the internationally renowned Festival Theatre, Pallant House Gallery, and museums. Chichester also benefits from a mainline rail service to London Victoria (approx. 90 minutes) and convenient access to the A27 linking Brighton and Southampton.
Agents Note: Upon acceptance of an offer, White & Brooks will complete an online identity check provided by Veriphy. The cost of this check to the successful purchaser is £79 including VAT per purchase which will be payable in advance to White & Brooks Ltd. This charge verifies your identity in line with our obligations as requested by HMRC and documents to prove your identity and address will be required.
Hallway3' 7" x 3' 6" (1.08m x 1.07m)
Kitchen / Living Area11' 1" x 23' 3" (3.38m x 7.09m)
Bedroom10' 11" x 12' 5" (3.33m x 3.79m)
Bathroom8' 0" x 6' 5" (2.44m x 1.95m)









