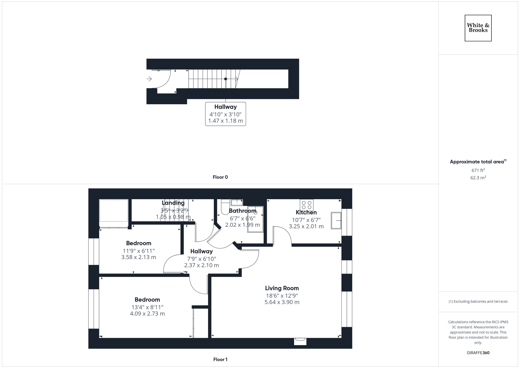
2 bedroom
1 bathroom
1 reception
667.36 sq ft (62 sq m)
2 bedroom
1 bathroom
1 reception
667.36 sq ft (62 sq m)
This beautifully presented two-bedroom retirement apartment offers a harmonious blend of modern convenience and classic charm. Set within a striking brick building, the property benefits from its own private entrance and is surrounded by landscaped communal gardens, mature trees, and vibrant flower beds. The welcoming hallway, finished in neutral decor with a wall-mounted intercom, sets the tone for the rest of the home.
The spacious living area is designed for comfort, featuring a cosy fireplace and large windows that flood the room with natural light. The well-appointed kitchen boasts, a double oven, a modern gas hob, and stylish wooden cabinetry, creating a practical and inviting space for cooking and dining. Both bedrooms are bright and comfortable with neutral decor and ample built-in storage. The contemporary bathroom is finished with sleek tiled walls and a modern shower cubicle, while the communal garden areas and outdoor seating provide the perfect setting for relaxation or entertaining. This apartment is ideal for those seeking stylish, low-maintenance living in a beautifully maintained environment.
Agents Note: Upon acceptance of an offer, White & Brooks will complete an online identity check provided by Veriphy. The cost of this check to the successful purchaser is £79 including VAT per purchase which will be payable in advance to White & Brooks Ltd. This charge verifies your identity in line with our obligations as requested by HMRC and documents to prove your identity and address will be required.
Hallway3' 10" x 4' 10" (1.18m x 1.47m)
Landing3' 3" x 3' 5" (0.98m x 1.05m)
Bathroom6' 6" x 6' 8" (1.99m x 2.02m)
Kitchen6' 7" x 10' 8" (2.01m x 3.25m)
Bedroom 17' 0" x 11' 9" (2.13m x 3.58m)
Bedroom 28' 11" x 13' 5" (2.73m x 4.09m)
Living Room12' 10" x 18' 6" (3.90m x 5.64m)














