2 bedroom
1 bathroom
1 reception
2 bedroom
1 bathroom
1 reception
This beautifully presented semi detached bungalow offers a harmonious blend of modern style and practical living. Boasting two well-proportioned bedrooms, a contemporary bathroom, and a spacious open plan reception area, the property is thoughtfully designed for comfort and convenience. The modern kitchen features sleek high-gloss units, integrated appliances, and ample countertop space. The living area showcases a cosy fireplace and flows seamlessly into a bright conservatory, creating an inviting space for both relaxation and entertaining. Wooden flooring, stylish ceiling details, and a welcoming entrance hall further enhance the property's sense of quality and warmth.
Step outside to enjoy a private, well-maintained garden with mature trees, lush planting, and a paved patio perfect for al fresco dining. The bungalow benefits from a charming front garden with a gated entrance. Additional highlights include a modern bathroom with a glass-enclosed shower and heated towel rail. This versatile home is ideal for those seeking stylish, low-maintenance living with excellent indoor-outdoor connectivity.
Agents Note: Upon acceptance of an offer, White & Brooks will complete an online identity check. The cost of this check to the successful purchaser is £79 including VAT per purchase which will be payable in advance to White & Brooks Ltd. This charge verifies your identity in line with our obligations as requested by HMRC and documents to prove your identity and address will be required.
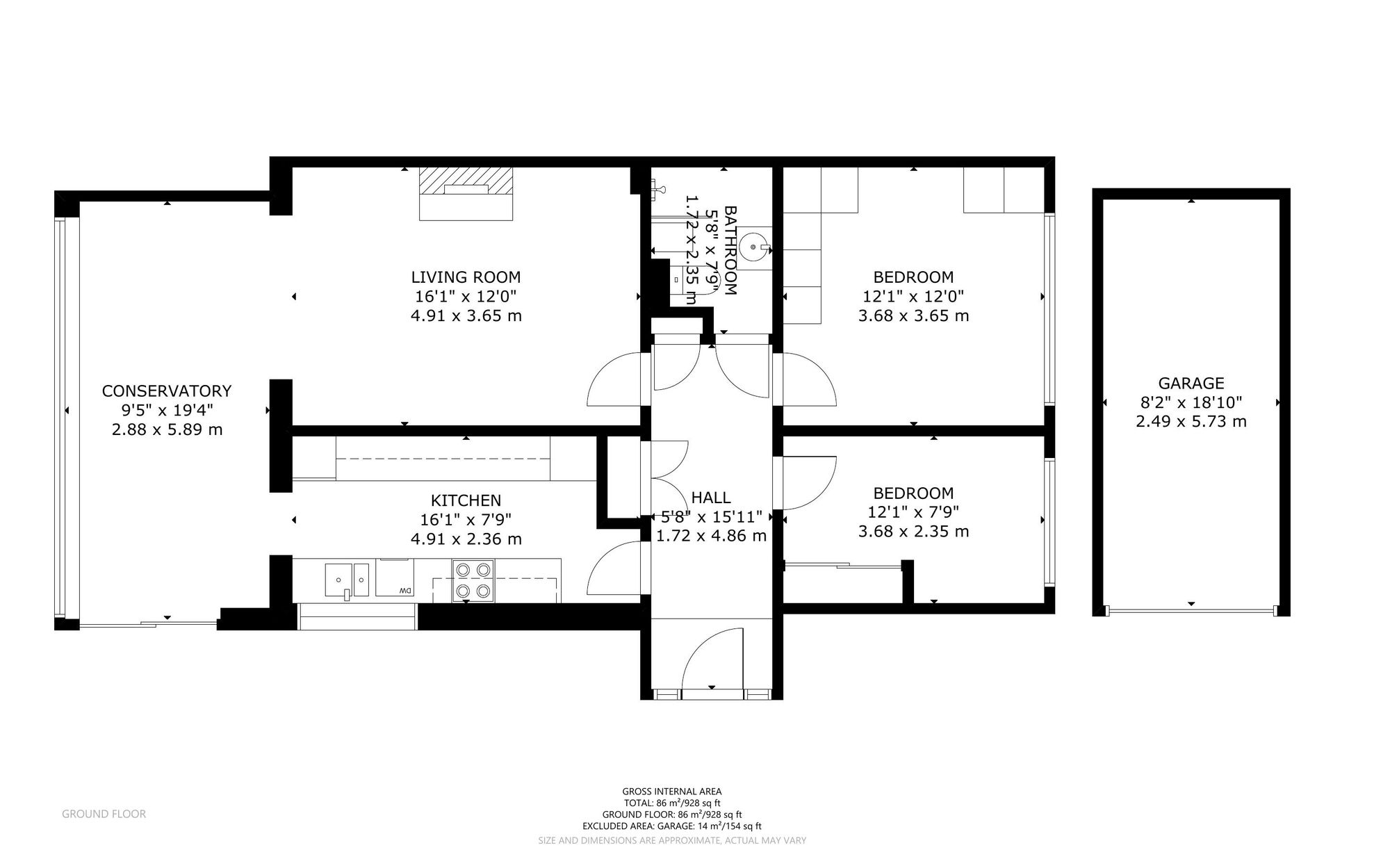
Entrance HallDimensions: 1.73m x 4.85m.
KitchenDimensions: 4.9m x 2.36m.
Living RoomDimensions: 5.16m x 3.66m.
ConservatoryDimensions: 2.87m x 5.9m.
BathroomDimensions: 1.73m x 2.36m.
BedroomDimensions: 3.68m x 3.66m.
BedroomDimensions: 3.68m x 2.36m.
Garage Situated In Nearby CompoundDimensions: 2.5m x 5.74m.
Westerly Aspect Rear Garden















