2 bedroom
1 bathroom
2 receptions
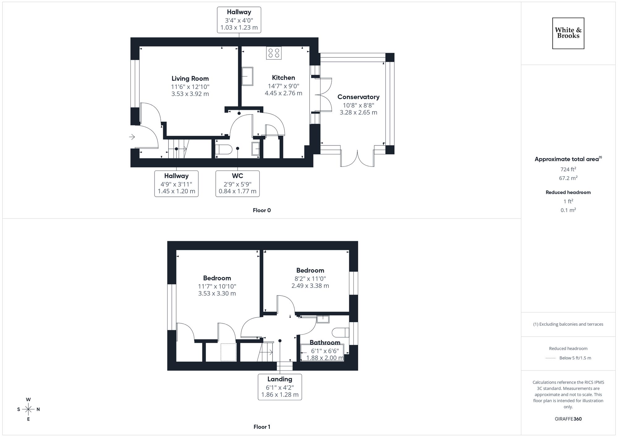
721.18 sq ft (67 sq m)
2 bedroom
1 bathroom
2 receptions
721.18 sq ft (67 sq m)
This immaculately presented two-bedroom semi-detached home is located in the highly desirable village of Westhampnett, just outside the historic cathedral city of Chichester. Offering parking for up to three vehicles, the property is surrounded by picturesque Sussex countryside, and within a pleasant 15–20 minute walk of the city centre, the property enjoys a balance of town and country living.
Ideally positioned for convenience, the home is just five minutes from local supermarkets and Portfield Retail Park, with excellent access to main routes leading into the South Downs and across to the charming market town of Arundel and the vibrant coastal city of Brighton. A bus stop directly outside the property offers regular and convenient connections to the city centre, hospital and train station, making commuting and daily travel effortless.
The property welcomes you into a spacious living room, which leads through to a contemporary kitchen featuring integrated appliances, generous storage including a pantry, and patio doors opening into the conservatory. The conservatory boasts wooden flooring, skylights, and further patio doors providing access to the enclosed rear garden. A convenient downstairs WC completes the ground floor accommodation.
Upstairs, there are two well-proportioned double bedrooms, with the primary bedroom benefiting from built-in storage, along with a modern family bathroom fitted with an over-bath shower and heated towel rail.
Externally, the rear garden is fully enclosed and mainly laid to lawn, with raised decking and a patio area ideal for relaxing or entertaining, as well as a shed for additional storage. To the front of the property, there is off-road parking for up to three vehicles.
Chichester offers an excellent range of cultural, leisure, and shopping amenities, including the internationally renowned Festival Theatre, Pallant House Gallery, and several local museums. The South Downs National Park lies to the north, providing miles of scenic walks and access to the Goodwood Estate, while some of the South Coast’s finest beaches are just 20 minutes to the south. Chichester also benefits from a mainline rail service to London Victoria (approximately 90 minutes), and the A27 provides convenient access to Brighton to the east and Southampton to the west.
Agents Note: Upon acceptance of an offer, White & Brooks will complete an online identity check provided by Veriphy. The cost of this check to the successful purchaser is £79 including VAT per purchase which will be payable in advance to White & Brooks Ltd. This charge verifies your identity in line with our obligations as requested by HMRC and documents to prove your identity and address will be required.
Hallway4' 0" x 3' 5" (1.23m x 1.03m)
Living Room12' 10" x 11' 7" (3.92m x 3.53m)
Kitchen9' 1" x 14' 7" (2.76m x 4.45m)
Sunroom8' 8" x 10' 9" (2.65m x 3.28m)
Hallway3' 11" x 4' 9" (1.20m x 1.45m)
Wc5' 10" x 2' 9" (1.77m x 0.84m)
Bedroom10' 10" x 11' 7" (3.30m x 3.53m)
Bedroom11' 1" x 8' 2" (3.38m x 2.49m)
Landing4' 2" x 6' 1" (1.28m x 1.86m)
Bathroom6' 7" x 6' 2" (2.00m x 1.88m)

















