3 bedroom
1 bathroom
1 reception
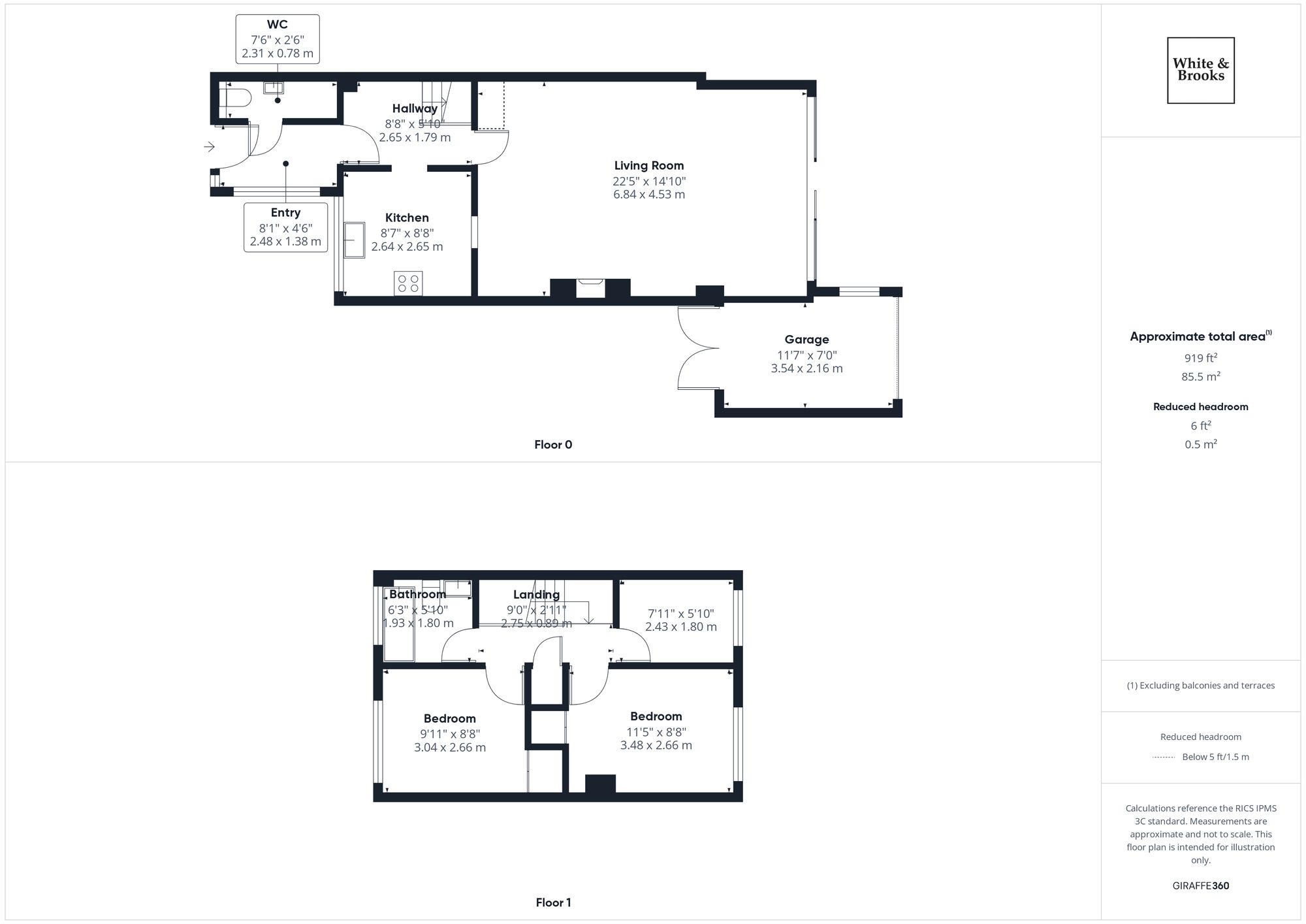
914.93 sq ft (85 sq m)
3 bedroom
1 bathroom
1 reception
914.93 sq ft (85 sq m)
This three-bedroom end-of-terrace home is ideally located in the highly desirable seaside village of East Wittering, just a four-minute stroll from the tranquil shores of East Wittering beach. The village offers a charming blend of traditional amenities — including a butcher, greengrocer, bakery, doctor’s surgery, dentist, and primary school — alongside modern convenience stores. Excellent transport links to Chichester City are available via a nearby bus stop.
At the heart of the home is a bright and generously proportioned 22ft living/dining room, featuring an attractive fireplace and large patio doors that open onto the rear garden. The stylish kitchen is well-equipped with integrated appliances and ample storage, and a downstairs WC/utility room completes the ground floor.
Upstairs, there are two spacious double bedrooms, both with built-in storage, as well as a third single bedroom. A modern family bathroom with an over-bath shower serves this level, along with additional storage located on the landing.
Outside, the west-facing rear garden is enclosed and laid with gravel for low maintenance. There is also a garden shed and access to the garage, which features an electric roller door, power, lighting, and traditional double wooden doors at the front. The front garden is framed by mature trees and shrubs for added privacy.
The surrounding countryside offers picturesque walking routes leading to the harbour, while the Salterns Way cycle path links West Wittering to Chichester via Itchenor and Chichester Marina. West Wittering’s stunning sandy beaches are only 1.5 miles away. Approximately seven miles from the historic Cathedral City of Chichester, this area offers a wide range of cultural, leisure, and shopping amenities, including the acclaimed Festival Theatre, Pallant House Gallery, and several museums. For sailing enthusiasts, the region is a haven, with multiple sailing clubs and marinas providing excellent facilities for all levels.
Agents Note: Upon acceptance of an offer, White & Brooks will complete an online identity check provided by Veriphy. The cost of this check to the successful purchaser is £79 including VAT per purchase which will be payable in advance to White & Brooks Ltd. This charge verifies your identity in line with our obligations as requested by HMRC and documents to prove your identity and address will be required.
WC2' 7" x 7' 7" (0.78m x 2.31m)
Entry4' 6" x 8' 2" (1.38m x 2.48m)
Hallway5' 10" x 8' 8" (1.79m x 2.65m)
Kitchen8' 8" x 8' 8" (2.65m x 2.64m)
Living Room14' 10" x 22' 5" (4.53m x 6.84m)
Bedroom8' 9" x 10' 0" (2.66m x 3.04m)
Bedroom8' 9" x 11' 5" (2.66m x 3.48m)
Bedroom8' 1" x 5' 11" (2.46m x 1.80m)
Landing3' 10" x 9' 0" (1.18m x 2.75m)
Bathroom5' 11" x 6' 4" (1.80m x 1.93m)
Garage7' 1" x 11' 7" (2.16m x 3.54m)
















