3 bedroom
2 bathroom
1 reception
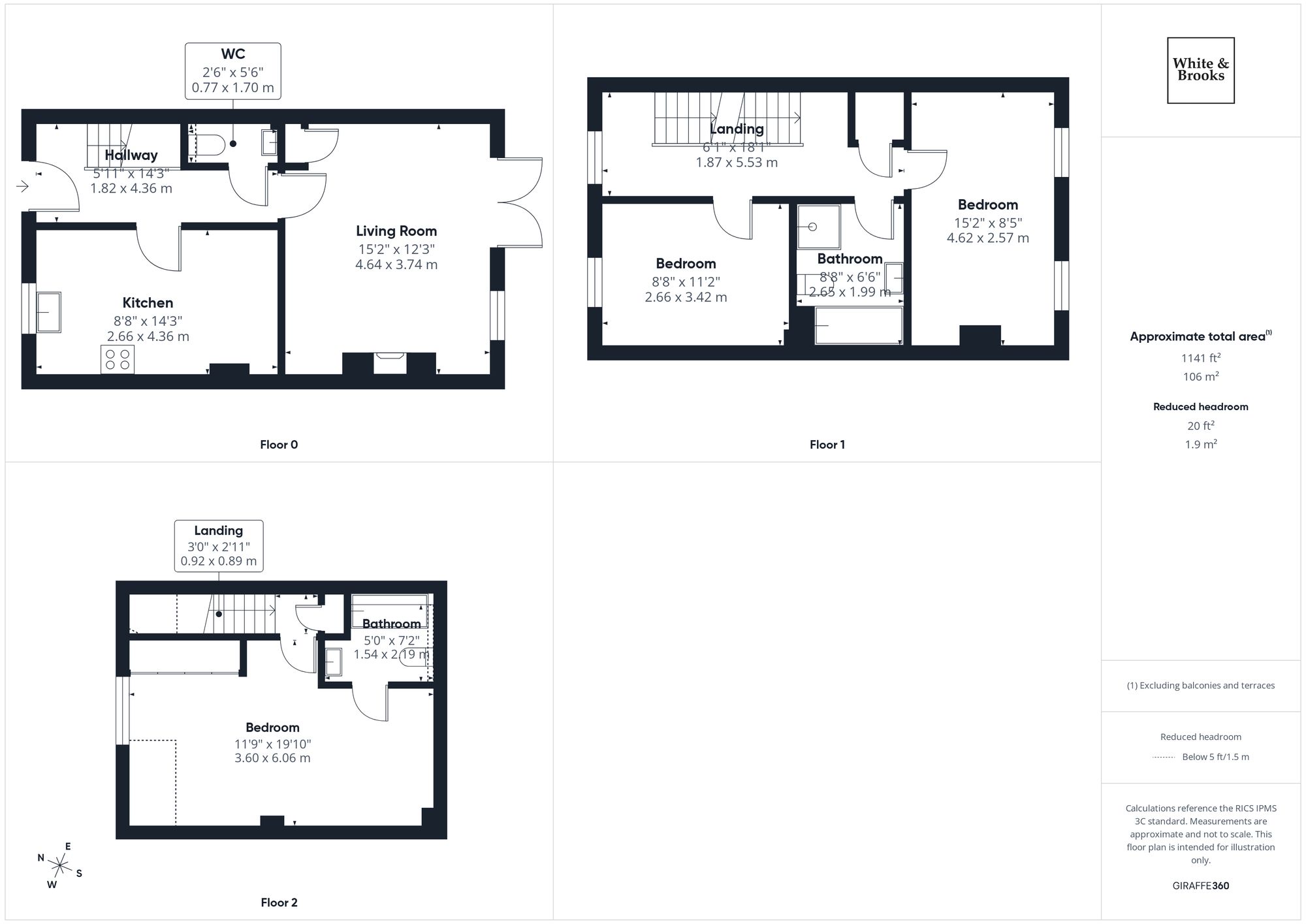
1,140.97 sq ft (106 sq m)
3 bedroom
2 bathroom
1 reception
1,140.97 sq ft (106 sq m)
This well-presented three-bedroom end-of-terrace home is offered with no onward chain and benefits from a carport and off-road parking for up to three vehicles. Situated in a quiet cul-de-sac within a small private development, the property lies in the highly sought-after village of Westhampnett, just outside the historic cathedral city of Chichester. The home is surrounded by beautiful Sussex countryside and is conveniently located within a 15–20 minute walk of the city centre, with private pedestrian access to Barnfield Retail Park just five minutes away.
Recently refreshed with new carpets and décor throughout, the ground floor offers a spacious and light-filled living room featuring a coal-effect gas fireplace, neutral décor, large windows, and French doors opening directly onto the private rear garden. The modern kitchen/diner has been upgraded and includes an integrated induction hob, oven, fridge freezer, and freestanding washer dryer. A downstairs WC completes the ground floor.
The first floor comprises two bright and generously sized double bedrooms, along with a fully tiled family bathroom fitted with both a bath and a separate shower cubicle. An airing cupboard is located on the landing
Occupying the entire second floor, the spacious primary bedroom benefits from built-in wardrobes, skylights, an additional window, and a modern tiled en-suite shower room.
Outside, the south-facing rear garden provides a mix of paved patio and soil areas, offering excellent potential for landscaping and creating an ideal space for outdoor dining, family gatherings, or summer entertaining. The garden is accessed directly from the living room via French doors and also features gated side access leading to the driveway and carport, where off-road parking is available for up to three vehicles.
The historic Cathedral City of Chichester offers a wide range of cultural, leisure, and shopping amenities, including the renowned Festival Theatre, Pallant House Gallery, and several museums. Nearby, the sandy beaches of West Wittering, sailing clubs, and marinas are ideal for water sports enthusiasts, while the South Downs National Park provides miles of scenic countryside. Just 3.5 miles north lies Goodwood, famous for its racecourse, golf courses, motorsport events, and the Rolls-Royce Motor Cars headquarters. Chichester also benefits from a mainline rail service to London Victoria and excellent road links via the A27 to Brighton and Southampton.
Agents Note: Upon acceptance of an offer, White & Brooks will complete an online identity check via Veriphy. The cost of this check is £79 including VAT per purchase, payable in advance to White & Brooks Ltd. This charge verifies your identity in accordance with HMRC requirements, and documentation confirming your identity and address will be required.
Hallway14' 4" x 6' 0" (4.36m x 1.82m)
Kitchen14' 4" x 8' 9" (4.36m x 2.66m)
Living Room12' 3" x 15' 3" (3.74m x 4.64m)
WC5' 7" x 2' 6" (1.70m x 0.77m)
Landing18' 2" x 6' 2" (5.53m x 1.87m)
Bedroom11' 3" x 8' 9" (3.42m x 2.66m)
Bedroom19' 11" x 11' 10" (6.06m x 3.60m)
Bathroom6' 6" x 8' 8" (1.99m x 2.65m)
Landing2' 11" x 3' 0" (0.89m x 0.92m)
Bedroom8' 5" x 15' 2" (2.57m x 4.62m)
Bathroom7' 2" x 5' 1" (2.19m x 1.54m)




















