Sold STC
Offers in Excess of £465,000

3 bed for sale in North Mead, Chichester, PO19

Shortlist

Key Features

  • Located in Summersdale, Chichester
  • Family Bathroom, Two Ensuites, WC
  • Garage/Utility Room
  • Master Bedroom with Dressing Room
  • Living Room with Large Balcony
  • Parkland location
  • Low Maintenance Garden
  • Three Bedroom Townhouse
  • Kitchen Dining Room
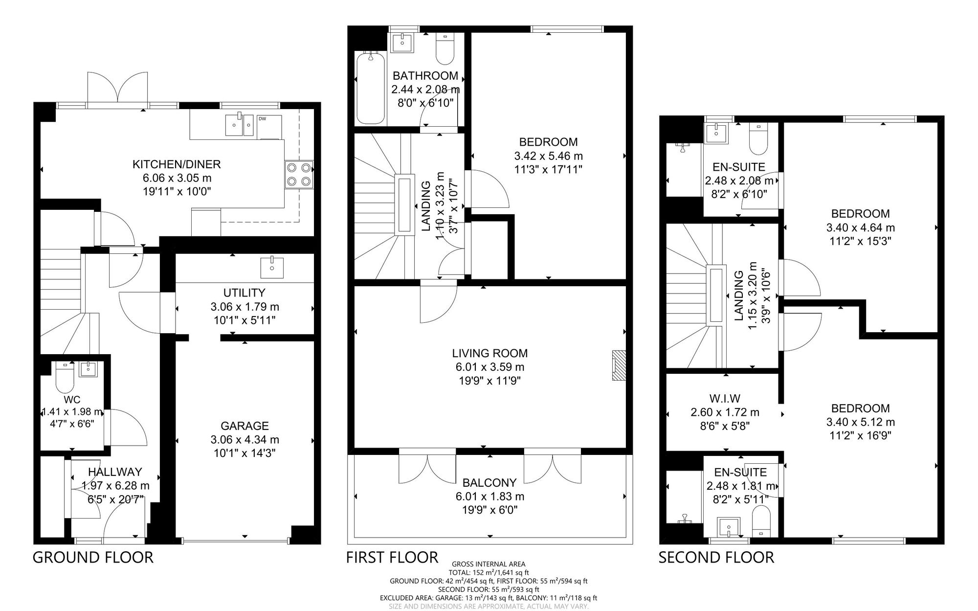
"This immaculate three-bedroom mid-terrace house is located in 85 acres of parkland at Graylingwell Park in the popular area of Summersdale a mere 15-minute walk into the centre of historic Chichester with its a wide variety of cultural, leisure and shopping facilities. With views over the Graylingwell chapel, this modern townhouse is set over three floors offering flexible accommodation. A spacious kitchen/diner, with integrated appliances and ample space for a dining table and chairs, has patio doors leading onto an attractive low maintenance garden, perfect for entertaining or just relaxing. There is also a garage, part of which has been converted into a utility room and a downstairs cloakroom on the ground floor. In addition to the garage, there is a driveway at the front of the property. A 19ft living room can be found on the first floor, with two French windows leading onto a sunny balcony. A double bedroom and family bathroom complete the accommodation on the first floor. Two further double bedrooms can be found on the second floor, both of which benefit from ensuites shower rooms with windows. The Master suite also has a walk in wardrobe .

Community facilities at Graylingwell Park include a Wellness centre with a studio for yoga and pilates, treatment rooms and a cafe, as well as the newly renovated Chapel which is now a community hub and café offering comedy and music nights. There is a large park, cricket ground and walks into the surrounding countryside."

Entrance Hall

Kitchen Dining RoomDimensions: 6.07m x 3.05m.

Cloakroom

Utility RoomDimensions: 3.07m x 1.8m.

Garage

Living RoomDimensions: 6.02m x 3.58m.

BalconyDimensions: 6.02m x 1.83m.

Master BedroomDimensions: 3.4m x 5.1m.

Ensuite Bathroom

Stamp duty due

Based on a sale price of £465,000 the total amount of stamp duty payable will be:

*

Last updated: The calculator has been updated to reflect changes in stamp duty following the Autumn Budget on 30th October 2024 for April 1st 2025 onwards.

* This value is based on the standard rate and not applicable to first-time buyers or buy-to-let / second home buyers.

Property Images

3 bed for sale in North Mead, Chichester, PO19 0
3 bed for sale in North Mead, Chichester, PO19 1
3 bed for sale in North Mead, Chichester, PO19 2
3 bed for sale in North Mead, Chichester, PO19 3
3 bed for sale in North Mead, Chichester, PO19 4
3 bed for sale in North Mead, Chichester, PO19 5
3 bed for sale in North Mead, Chichester, PO19 6
3 bed for sale in North Mead, Chichester, PO19 7
3 bed for sale in North Mead, Chichester, PO19 8
3 bed for sale in North Mead, Chichester, PO19 9
3 bed for sale in North Mead, Chichester, PO19 10
3 bed for sale in North Mead, Chichester, PO19 11
3 bed for sale in North Mead, Chichester, PO19 12
3 bed for sale in North Mead, Chichester, PO19 13
3 bed for sale in North Mead, Chichester, PO19 14
3 bed for sale in North Mead, Chichester, PO19 15

Further Details

  • Status: Sold STC
  • Reference: 704400

Location