3 bedroom
1 bathroom
1 reception
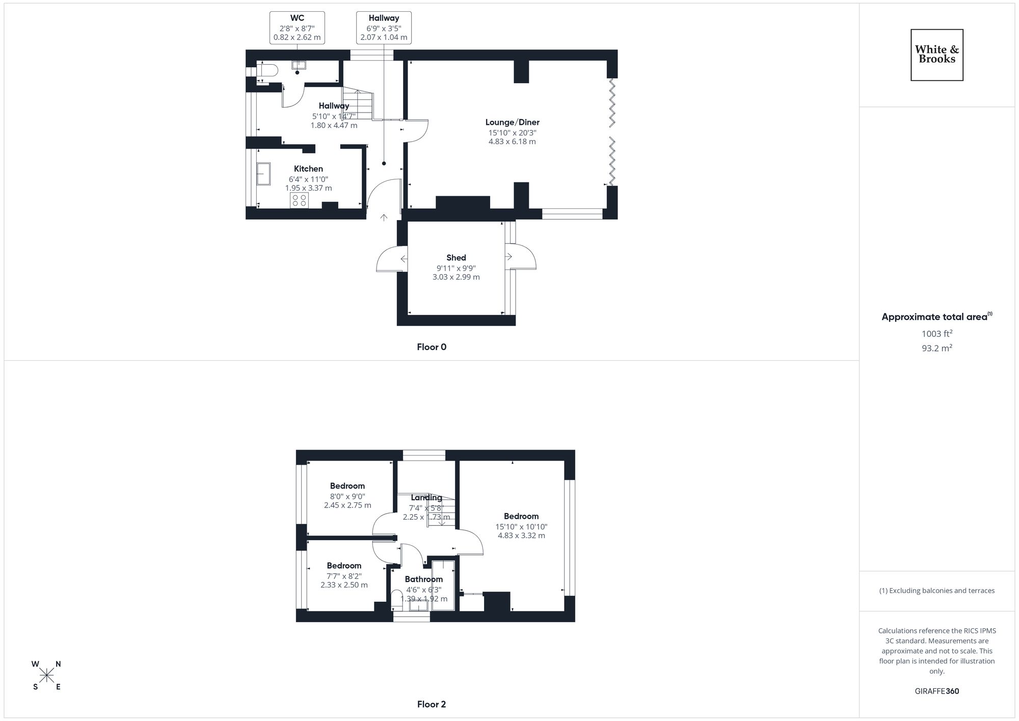
1,001.04 sq ft (93 sq m)
3 bedroom
1 bathroom
1 reception
1,001.04 sq ft (93 sq m)
This well-presented 1960s three double-bedroom link-detached home, complete with a carport and driveway, is situated in the highly sought-after village of Hunston, approximately 1.6 miles from the cathedral city of Chichester. Hunston lies alongside the picturesque Chichester Canal and offers local amenities including a public house and convenience store.
Entering through the spacious hallway you will find a modern fitted kitchen with integrated oven and hob, and a generous lounge/diner featuring Velux windows and bi-fold doors opening onto the enclosed rear garden. The ground floor also benefits from a downstairs WC and a versatile storeroom, accessible from both the front and rear of the property, currently used as a utility room.
Upstairs, there are three double bedrooms, with the primary bedroom benefiting from built-in storage. A contemporary family bathroom with heated towel rail completes the first floor.
Externally, the property boasts a large enclosed rear garden with a well-maintained lawn and raised planting beds. To the front is a small lawned area, along with a carport and driveway providing parking for up to three vehicles.
Chichester provides a wide variety of cultural, leisure and shopping facilities, including the internationally renowned Festival Theatre, Pallant House Gallery, Museums, Cineworld complex and restaurants. Nearby Selsey and the Wittering’s offer stunning beaches and a wide choice of recreational and water-related sporting facilities. Chichester benefits from a main line rail service to London Victoria (approximately 90 minutes) and the A27 provides access across the Coast to Brighton to the East and Southampton to the West.
Agents Note: Upon acceptance of an offer, White & Brooks will complete an online identity check provided by Veriphy. The cost of this check to the successful purchaser is £79 including VAT per purchase which will be payable in advance to White & Brooks Ltd. This charge verifies your identity in line with our obligations as requested by HMRC and documents to prove your identity and address will be required.
Lounge / diner20' 3" x 15' 10" (6.18m x 4.83m)
Kitchen11' 1" x 6' 5" (3.37m x 1.95m)
WC8' 7" x 2' 8" (2.62m x 0.82m)
Hallway3' 5" x 6' 9" (1.04m x 2.07m)
Hallway14' 8" x 5' 11" (4.47m x 1.80m)
Shed9' 10" x 9' 11" (2.99m x 3.03m)
Landing4' 3" x 7' 5" (1.30m x 2.25m)
Bedroom9' 0" x 8' 0" (2.75m x 2.45m)
Bedroom8' 2" x 7' 8" (2.50m x 2.33m)
Bedroom10' 11" x 15' 10" (3.32m x 4.83m)
Bathroom6' 4" x 4' 6" (1.92m x 1.37m)




















