3 bedroom
2 bathroom
1 reception
3 bedroom
2 bathroom
1 reception
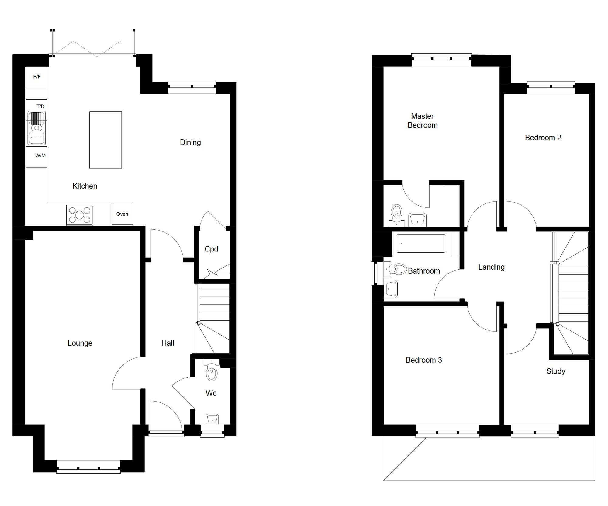
LAST PROPERTY REMAINING! STILL TIME TO PERSONALISE WITH CHOICE OF KITCHEN AND FLOORING! A larger than average three bedroom semi-detached home, featuring a first floor study which may also be used as a fourth bedroom.
One of only two homes of this design within the development, the property benefits from an en suite to the principal bedroom, together with a well-appointed family bathroom. The ground floor accommodation comprises a living room and an impressive, spacious kitchen/dining room with bi-fold doors opening onto the rear garden, providing an excellent space for both family living and entertaining. Externally, the property further benefits from three allocated parking spaces.
The high specification includes underfloor heating to the ground floor, PV solar panels, an EV charging point, and a full range of integrated appliances, including a double oven, fridge/freezer, washer/dryer, dishwasher, and induction hob. Flooring is included throughout, with LVT flooring to the entrance hall, kitchen/dining room, and cloakroom, and carpets to the living room, bedrooms, study/bedroom four, landing, and stairs. The en suite and family bathroom are finished with white sanitary ware and fully tiled walls and floors. The front and rear gardens are turfed and include porcelain-paved patios, and the property is covered by a ten-year Premier Guarantee.
Foxlease is an exceptional private development of just ten new homes, located in the highly desirable village of Aldingbourne. Constructed by Oceanview Developments, the homes are finished to a high standard throughout. Externally, the properties all benefit from garaging and/or allocated parking, together with additional visitor spaces.
The development is conveniently situated approximately one mile from Aldingbourne Primary School and the Six Villages Secondary Academy in Westergate. Surrounded by attractive countryside, Barnham is just 2½ miles away and offers a range of local amenities, along with a mainline rail service to London Victoria (approximately 80 minutes). Bognor Regis, with its more extensive shopping facilities, is approximately three miles distant.
The nearby cathedral city of Chichester provides a wide selection of cultural, leisure, and shopping amenities, including the renowned Festival Theatre, Pallant House Gallery, and several museums. To the north lies the South Downs National Park, offering miles of scenic walking and cycling routes, as well as the iconic Goodwood Estate. Some of the finest beaches on the south coast are within a 20-minute drive, while the A27 offers convenient access to Brighton to the east and Southampton to the west!
Please note that the internal photographs are of No. 9 and are intended to show the specification on offer only and final finishes may vary due to purchaser choices. The floor plan shown is of No. 9 Earnshaw Gardens and No. 8 is handed (a mirror image).
This information is provided in good faith and is believed to be correct at the time of publication; however, Oceanview Developments reserves the right to amend, alter, or withdraw details without prior notice.
Agents Note: Upon acceptance of an offer, White & Brooks will complete an online identity check provided by Veriphy. The cost of this check to the successful purchaser is £79 including VAT per purchase which will be payable in advance to White & Brooks Ltd. This charge verifies your identity in line with our obligations as requested by HMRC and documents to prove your identity and address will be required."
Kitchen/Dining Room19' 0" x 14' 9" (5.80m x 4.50m)
Living Room21' 4" x 10' 10" (6.50m x 3.30m)
Cloakroom
Bedroom 114' 9" x 10' 10" (4.50m x 3.30m)
En Suite
Bedroom 212' 6" x 7' 10" (3.80m x 2.40m)
Bedroom 310' 10" x 10' 10" (3.30m x 3.30m)
Study/Bedroom 48' 10" x 7' 10" (2.70m x 2.40m)
Family Bathroom
















