4 bedroom
2 bathroom
1 reception
1,399.31 sq ft (130 sq m)
4 bedroom
2 bathroom
1 reception
1,399.31 sq ft (130 sq m)
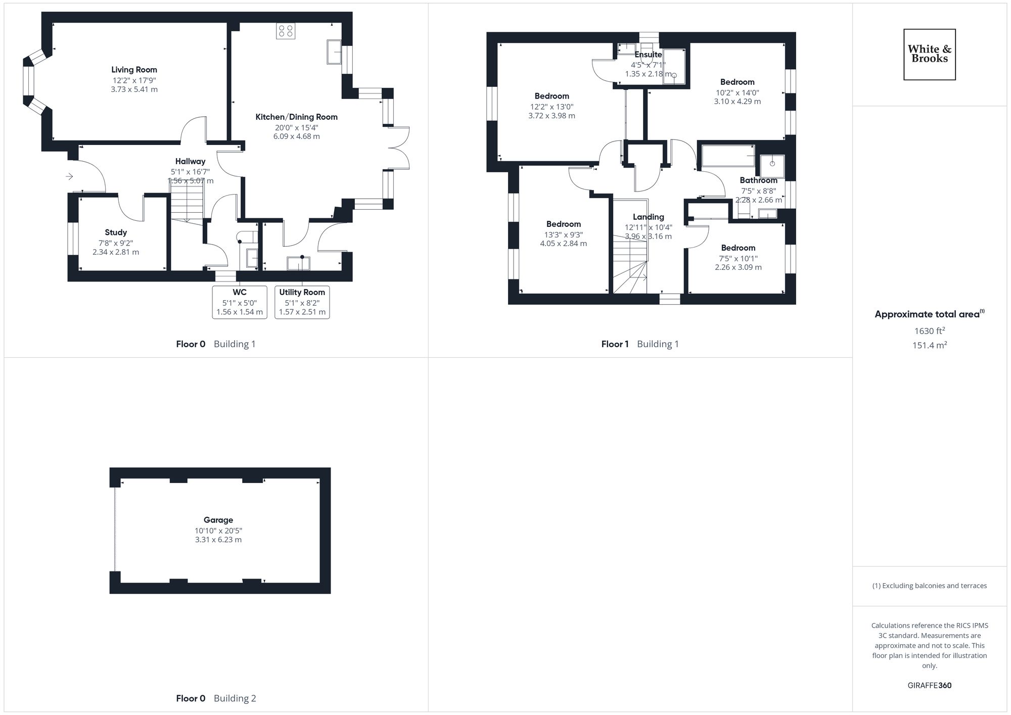
This immaculately presented four-bedroom, two-bathroom home is situated within the highly sought-after Madgwick Park development in Westhampnett, offering convenient access to local amenities, well-regarded schools, and excellent transport links. The property also benefits from off-road parking for multiple vehicles.
Upon entering, you are welcomed into a bright and neutrally decorated living room, enhanced by a bay window that fills the space with natural light. There is also a versatile study, currently used as a playroom, ideal for home working or family needs.
The heart of the home is the spacious open-plan kitchen and living area, featuring sleek modern units, integrated appliances, and stylish Amtico flooring. Patio doors open directly onto the rear garden, creating a perfect setting for entertaining and family gatherings. A separate utility room provides additional practicality with direct garden access, while a downstairs WC completes the ground floor.
Upstairs, there are four generously sized bedrooms, three of which are fitted with elegant shutters. The primary bedroom benefits from built-in storage and a private en-suite. A well-appointed family bathroom includes a separate shower cubicle, and there is further storage available on the landing.
Externally, the landscaped rear garden offers a well-maintained lawn and a spacious patio area, ideal for outdoor dining. Additional features include a driveway providing off-road parking for up to four vehicles, along with a detached garage.
Westhampnett is ideally located just outside Chichester City Centre, which offers a variety of cultural, leisure, and shopping attractions, including the Festival Theatre, Pallant House Gallery, and several museums. Chichester has a mainline rail service to London Victoria (around 90 minutes) and good road links via the A27 to Brighton and Southampton. To the north, the South Downs National Park provides scenic walking and cycling routes, while nearby Goodwood—just 3½ miles away—is known for its racecourse, golf courses, airfield, and events like the Festival of Speed and The Revival.
Agents Note: Upon acceptance of an offer, White & Brooks will complete an online identity check provided by Veriphy. The cost of this check to the successful purchaser is £79 including VAT per purchase which will be payable in advance to White & Brooks Ltd. This charge verifies your identity in line with our obligations as requested by HMRC and documents to prove your identity and address will be required.
Living Room9' 3" x 7' 8" (2.81m x 2.34m)
Kitchen20' 0" x 15' 4" (6.09m x 4.68m)
Hallway16' 8" x 5' 1" (5.07m x 1.56m)
WC5' 1" x 5' 1" (1.56m x 1.54m)
Utility Room8' 3" x 5' 2" (2.51m x 1.57m)
Bedroom 113' 1" x 12' 2" (3.98m x 3.72m)
Bedroom 214' 1" x 10' 2" (4.29m x 3.10m)
Bedroom 313' 3" x 9' 4" (4.05m x 2.84m)
Bedroom 410' 2" x 7' 5" (3.09m x 2.26m)
Bathroom 17' 2" x 4' 5" (2.18m x 1.35m)
Bathroom 28' 9" x 7' 6" (2.66m x 2.28m)






























