4 bedroom
2 bathroom
2 receptions
4 bedroom
2 bathroom
2 receptions
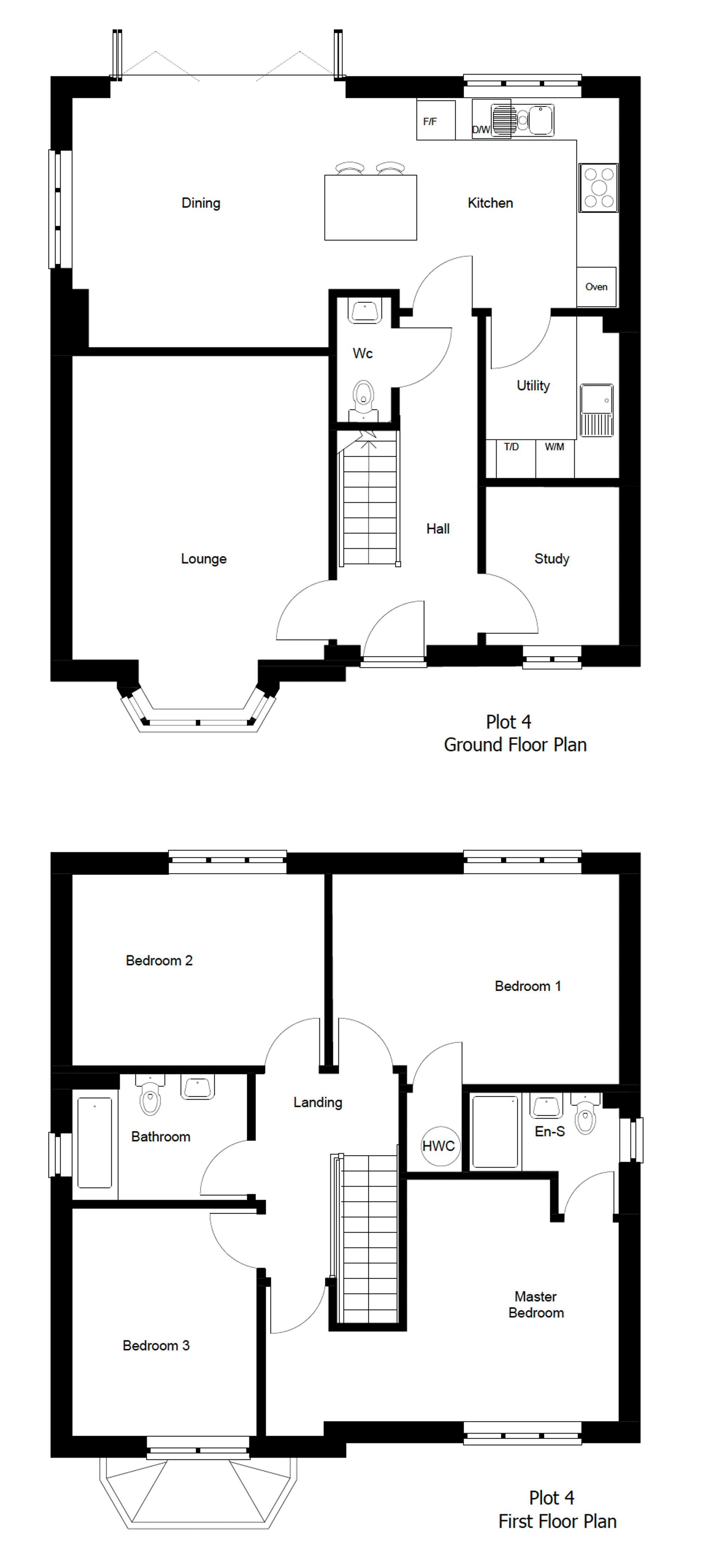
This impressive detached family home offers four generously sized double bedrooms and two bathrooms, including an en suite to the main bedroom. At the heart of the property is a stunning kitchen/dining room that spans the full width of the house, providing an exceptional space for both everyday family living and entertaining. This room features bi-fold doors opening onto a south-west facing rear garden, creating a seamless connection between indoor and outdoor living. Additional accommodation includes a separate living room with bay window, a study, utility room, and cloakroom.
Externally, the property benefits from a detached garage and a driveway providing parking for two vehicles, with additional visitor parking available within the development.
The high specification throughout includes underfloor heating to the ground floor, PV solar panels, an EV charging point, and a comprehensive range of integrated appliances comprising a double oven, fridge/freezer, dishwasher, and induction hob.
Flooring is included throughout, with LVT flooring to the entrance hall, kitchen/dining room, study, cloakroom, and utility room, and carpets to the living room, bedrooms, landing, and stairs. The en suite and family bathroom are finished with white sanitary ware, brushed brass fittings, and fully tiled walls and floors. Both the front and rear gardens are turfed and feature porcelain paved patios. The property is also covered by a ten-year Premier Guarantee.
Foxlease is an exclusive private development of just ten new homes, situated in the highly sought-after village of Aldingbourne. Built by Oceanview Developments, each home is finished to a high specification throughout. The development is conveniently located approximately one mile from Aldingbourne Primary School and the Six Villages Secondary Academy in Westergate. Surrounded by attractive countryside, Barnham is just 2½ miles away and offers a range of local amenities together with a mainline rail service to London Victoria (approximately 80 minutes). The coastal town of Bognor Regis, with its more extensive shopping facilities, lies approximately three miles away.
The nearby cathedral city of Chichester provides an excellent selection of cultural, leisure, and shopping amenities, including the renowned Festival Theatre, Pallant House Gallery, and several museums. To the north, the South Downs National Park offers outstanding walking and cycling routes, alongside the iconic Goodwood Estate. Some of the finest beaches on the south coast are within a 20-minute drive, while the A27 offers convenient access to Brighton to the east and Southampton to the west.
This information is provided in good faith and is believed to be correct at the time of publication. Oceanview Developments reserves the right to amend, alter, or remove any details without prior notice. The EPC is a predicted energy assessment.
Agents Note: Upon acceptance of an offer, White & Brooks will complete an online identity check provided by Veriphy. The cost of this check to the successful purchaser is £79 including VAT per purchase which will be payable in advance to White & Brooks Ltd. This charge verifies your identity in line with our obligations as requested by HMRC and documents to prove your identity and address will be required."
Kitchen/Dining Room27' 2" x 13' 2" (8.28m x 4.01m)
Living Room17' 4" x 12' 10" (5.28m x 3.90m)
Study8' 2" x 6' 10" (2.50m x 2.08m)
Utility Room8' 2" x 6' 10" (2.50m x 2.08m)Dimensions: 2.5m x 2.08m.
Main Bedroom17' 8" x 13' 9" (5.38m x 4.20m)
En Suite
Bedroom 213' 9" x 10' 6" (4.20m x 3.20m)
Bedroom 312' 9" x 9' 6" (3.89m x 2.90m)Dimensions: 3.89m x 2.9m.
Bedroom 411' 5" x 9' 6" (3.48m x 2.90m)Dimensions: 3.48m x 2.9m.
Family Bathroom


















