3 bedroom
1 bathroom
2 receptions
3 bedroom
1 bathroom
2 receptions
This well presented detached house presents an exceptional opportunity for buyers seeking comfort, character, and practicality all in one. Offering to the first floor, three well-proportioned bedrooms and a four piece family bathroom suite. To the ground floor the property boasts an open plan kitchen/dining room and a fitted kitchen, with plenty of utility space. There are French doors from the dining room leading to a spacious conservatory, with access to the rear garden.
The outdoor spaces are just as impressive, with a substantial rear garden mainly laid to lawn with mature trees and shrubs and a generous patio area ideal for al fresco dining or entertaining. A garden shed provide practical storage. The house features an attractive front garden with a private driveway and car port, ensuring ample parking. With its combination of traditional features, modern comforts, and excellent outdoor amenities, this delightful house offers a welcoming home ready to be enjoyed from day one. Early viewing is highly recommended to appreciate all that this unique property has to offer.
Agents Note: Upon acceptance of an offer, White & Brooks will complete an online identity check. The cost of this check to the successful purchaser is £79 including VAT per purchase which will be payable in advance to White & Brooks Ltd. This charge verifies your identity in line with our obligations as requested by HMRC and documents to prove your identity and address will be required.
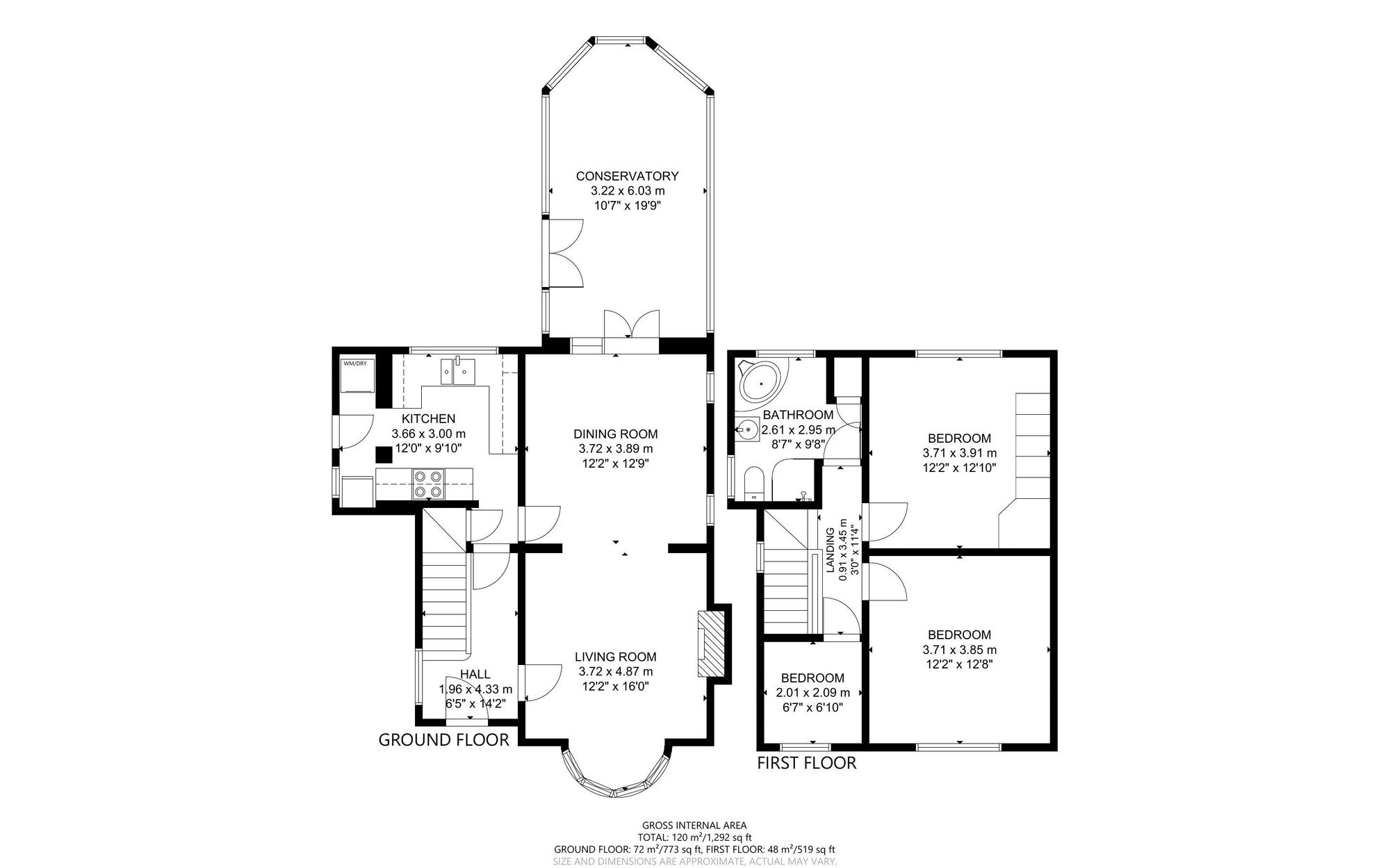
Entrance Hall6' 5" x 14' 2" (1.96m x 4.33m)
Kitchen12' 0" x 9' 10" (3.66m x 3.00m)
Living Room12' 2" x 16' 0" (3.72m x 4.87m)
Dining Room12' 2" x 12' 9" (3.72m x 3.89m)
Conservatory10' 7" x 19' 9" (3.22m x 6.03m)
Bedroom12' 2" x 12' 10" (3.71m x 3.91m)
Bedroom12' 2" x 12' 8" (3.71m x 3.85m)
Bedroom6' 7" x 6' 10" (2.01m x 2.09m)
Bathroom8' 7" x 9' 8" (2.61m x 2.95m)























