3 bedroom
2 bathroom
2 receptions
1,184.03 sq ft (110 sq m)
3 bedroom
2 bathroom
2 receptions
1,184.03 sq ft (110 sq m)
"This well-presented three-bedroom modern semi-detached house with a large driveway, is ideally located within walking distance of Chichester City Centre and close to the train station and is being offered with no onward chain.
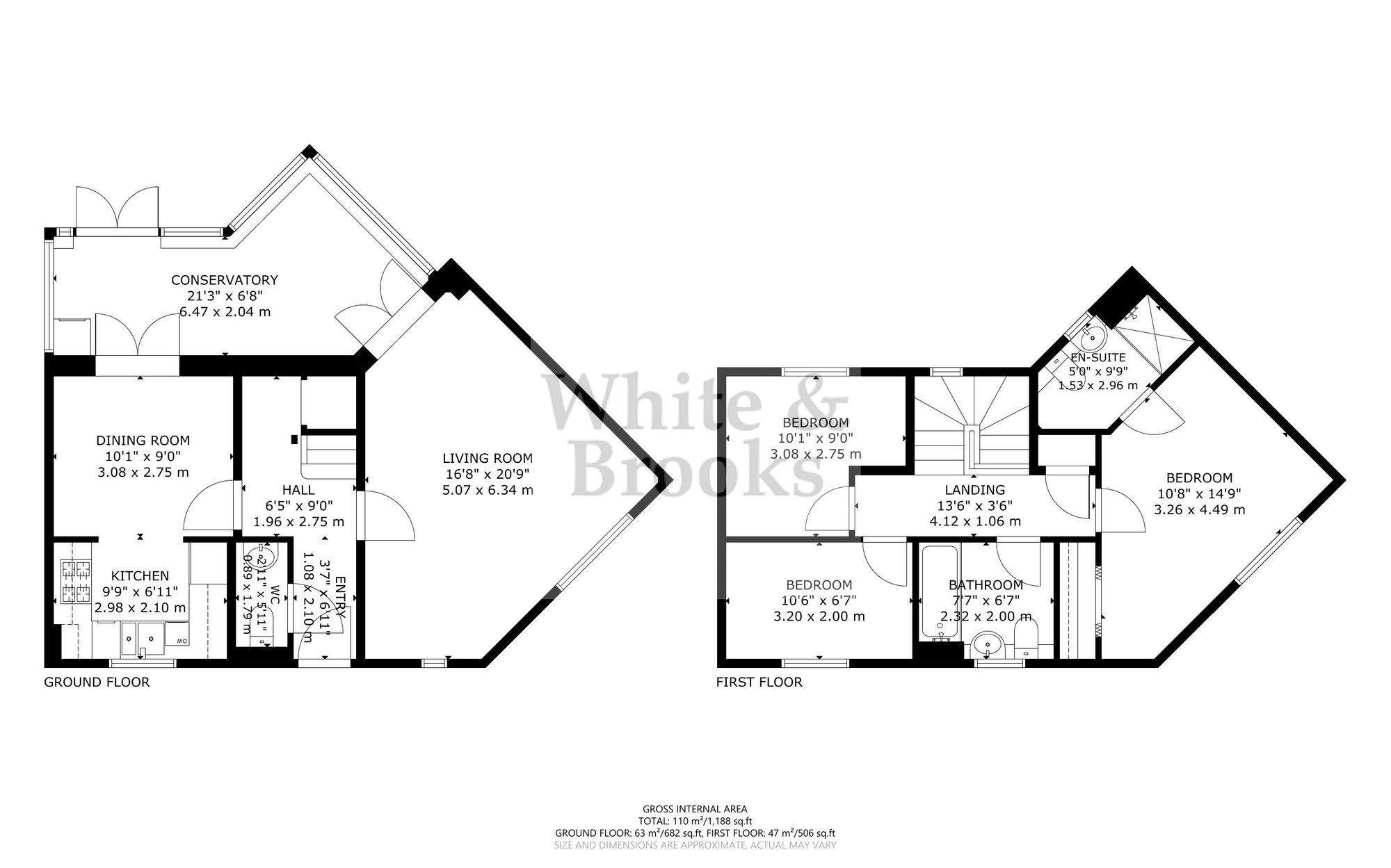
Upon entering the property, you are welcomed into a large, homely living room that leads into a 21ft conservatory, perfect for entertaining. This space flows seamlessly into the modern kitchen/dining room, which can also be accessed from the entrance hall. Additionally, a WC is conveniently located on this floor.
On the first floor, you will find the primary bedroom featuring an ensuite with a walk-in shower. There are also two additional bedrooms and a family bathroom equipped with an over-bath shower.
Externally, there is a good-sized, low-maintenance secluded garden with a gate for access, a wooden shed for additional storage, and a patio, providing plenty of space for alfresco dining and entertaining. The front of the property boasts a driveway with space for up to two cars.
The historic Cathedral City of Chichester provides various cultural, leisure, and shopping facilities, including the internationally renowned Festival Theatre, Pallant House Gallery, and museums. The nearby area hosts many sailing clubs and marinas, providing exceptional facilities for boating and sailing enthusiasts. West Wittering and East Head offer stunning beaches and a wide choice of recreational, and water-related sporting facilities. The South Downs National Park can be found to the north of Chichester and provides miles of beautiful walks and rides. Approximately 3½ miles to the North lies Goodwood with its’ famous racecourse, golf courses and airfield which is also home to the annual Festival of Speed and The Revival. Chichester benefits from a mainline rail service to London Victoria (approximately 90 minutes) and the A27 provides access across the Coast to Brighton to the East and Southampton to the West.
Agents Note: Upon acceptance of an offer, White & Brooks will complete an online identity check provided by Veriphy. The cost of this check to the successful purchaser is £49 including VAT per purchase which will be payable in advance to White & Brooks Ltd. This charge verifies your identity in line with our obligations as requested by HMRC and documents to prove your identity and address will be required."
Living RoomDimensions: 5.08m x 6.32m.
Kitchen AreaDimensions: 2.97m x 2.1m.
Dining AreaDimensions: 3.07m x 2.74m.
ConservatoryDimensions: 6.48m x 2.03m.
Hallway
WC
BedroomDimensions: 3.25m x 4.5m.
BedroomDimensions: 3.07m x 2.74m.
BedroomDimensions: 3.2m x 2m.















