£685,000

4 bed detached house for sale in Ferry Drive, Chichester, PO19

Shortlist

Key Features

  • Separate Utility Room
  • Four double bedrooms
  • Large Enclosed Rear Garden with Garden Room
  • Solar Panels for Energy Efficiency
  • Three bathrooms (two ensuite)
  • Detached Home
  • Double Garage & Off-Road Parking
  • Snug, Study & Conservatory
  • Downstairs WC
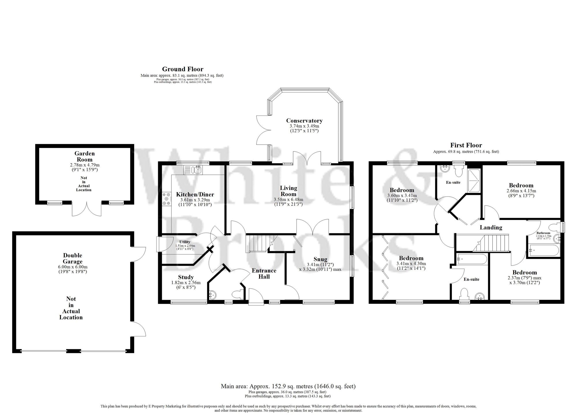
"This modern and spacious four-bedroom detached home is located in the desirable village of Donnington, just south of historic Chichester, close to the popular Chichester Canal and less than 2km from the Harbour. This impressive four-bedroom detached family home offers generous living space, contemporary features, and excellent connectivity via regular bus services into town. Boasting three bathrooms, a double garage, off-road parking, and eco-friendly solar panels, this property is ideal for modern family life.

Entering through a bright and welcoming entrance hall you will find a spacious 21ft living room complete with a feature fireplace. To the right is a cosy snug while to the left, a sunny conservatory opens out onto the rear garden—perfect for both relaxation and entertaining.

The stylish kitchen/diner is fitted with modern integrated appliances, ample storage, and generous worktop space. A large window provides a pleasant view of the rear garden. Adjacent is a separate utility room with an external door for added convenience. The ground floor also includes a dedicated study—ideal for home working—and a downstairs WC.

Upstairs, youll find four generously sized double bedrooms. The primary bedroom features extensive built-in wardrobes and a sleek ensuite bathroom. A second bedroom also benefits from its own ensuite shower room, while the remaining two bedrooms are served by a contemporary family bathroom with an over-the-bath shower. Additional storage is available on the landing.

The large rear garden is fully enclosed and mainly laid to lawn, featuring a patio, a decked area, and a versatile garden room. To the front of the property is a double garage and ample off-road parking.

Donnington combines village charm with easy access to Chichester’s cultural, shopping, and dining scene, including the Festival Theatre and Pallant House Gallery. Nearby attractions include West Wittering beach, sailing clubs, the South Downs National Park, and Goodwood—famous for its racing, golf, and events. Excellent transport links include a mainline rail service to London and the A27 to Brighton, Portsmouth, and Southampton.

Agents Note: Upon acceptance of an offer, White & Brooks will complete an online identity check provided by Veriphy. The cost of this check to the successful purchaser is £69 including VAT per purchase which will be payable in advance to White & Brooks Ltd. This charge verifies your identity in line with our obligations as requested by HMRC and documents to prove your identity and address will be required."

Stamp duty due

Based on a sale price of £685,000 the total amount of stamp duty payable will be:

*

Last updated: The calculator has been updated to reflect changes in stamp duty following the Autumn Budget on 30th October 2024 for April 1st 2025 onwards.

* This value is based on the standard rate and not applicable to first-time buyers or buy-to-let / second home buyers.

Property Images

4 bed detached house for sale in Ferry Drive, Chichester, PO19 0
4 bed detached house for sale in Ferry Drive, Chichester, PO19 1
4 bed detached house for sale in Ferry Drive, Chichester, PO19 2
4 bed detached house for sale in Ferry Drive, Chichester, PO19 3
4 bed detached house for sale in Ferry Drive, Chichester, PO19 4
4 bed detached house for sale in Ferry Drive, Chichester, PO19 5
4 bed detached house for sale in Ferry Drive, Chichester, PO19 6
4 bed detached house for sale in Ferry Drive, Chichester, PO19 7
4 bed detached house for sale in Ferry Drive, Chichester, PO19 8
4 bed detached house for sale in Ferry Drive, Chichester, PO19 9
4 bed detached house for sale in Ferry Drive, Chichester, PO19 10
4 bed detached house for sale in Ferry Drive, Chichester, PO19 11
4 bed detached house for sale in Ferry Drive, Chichester, PO19 12
4 bed detached house for sale in Ferry Drive, Chichester, PO19 13
4 bed detached house for sale in Ferry Drive, Chichester, PO19 14
4 bed detached house for sale in Ferry Drive, Chichester, PO19 15
4 bed detached house for sale in Ferry Drive, Chichester, PO19 16
4 bed detached house for sale in Ferry Drive, Chichester, PO19 17
4 bed detached house for sale in Ferry Drive, Chichester, PO19 18
4 bed detached house for sale in Ferry Drive, Chichester, PO19 19
4 bed detached house for sale in Ferry Drive, Chichester, PO19 20
4 bed detached house for sale in Ferry Drive, Chichester, PO19 21
4 bed detached house for sale in Ferry Drive, Chichester, PO19 22

Further Details

  • Status: Available
  • Size: 1,636.11 sq ft (152 sq m)
  • Tenure: Freehold
  • Reference: 667401

Location